Варианты перепланировок квартир серии II-68
Серия блочных домов II-68, которую по привычке многие именуют П-68, была создана в архитектурных мастерских МНИИТЭП и стала основой для разработки семейства типовых домов, предназначенных для массовой застройки.
Сама первоначальная серия II-68 (II-68-01) содержит только дома-башни, которые часто возводились как спаренные.
Дома серии строились не только в Московском регионе, но и в городах РФ.
Этажность серии от 5 до 17 этажей, но наибольшее распространение получили версии высотой в 12, 14 либо 16.
Первые дома приняли жильцов в 1969 году, а последний долгострой завершили в 1999 г., хотя период возведения серии практически завершился к олимпиаде 1980 года.
Квартиры в домах одно-, двух- или трехкомнатные, с их количеством на этаже от 6 до 9.
В 1-комнатных квартирах санузлы совмещенные, в остальных только раздельные.
| Площадь кв. м. | Общая | Жилая | Кухня |
|---|---|---|---|
| 1 к. кв. | 30-35 | 15-19 | 8-9.6 |
| 2 к. кв. | 40-51 | 25-32 | 8.6-11 |
| 3 к. кв. | 64-65 | 45-46 | 78-8.1 |
Высота потолка в комнатах — 248 см.
Два лифта – пассажирский и грузопассажирский.
Технические характеристики и материалы домов II-68:Материал наружных стен
Внутренние стены — бетонные блоки толщиной в 36-39 см.
Перегородки гипсобетонные, толщиной 8 см.
Перекрытия — многопустотные бетонные плиты толщиной 22 см
Вентиляция естественная с выходами из кухни и санкабины.
Мусоропровод с загрузкой на каждом этаже.
К достоинствам серии можно отнести грузопассажирский лифт, увеличенную жилую площадь, планировку только с изолированными комнатами и возможность перепланировки.
К недостаткам следует отнести традиционно низкие потолки и маленькие для трёхкомнатных квартир кухни.
Серия II-68-01
Серия II-68 (полное обозначение II-68-01-16, а «в народе» П-68) является одной из самых распространенных московских типовых серий. Эти панельно-блочные башни представлены во всех районах столицы и безошибочно узнаваемы (один фасад с жилыми лоджиями, а второй с противопожарной лоджией посередине). Несмотря на то, что блочные дома в принципе не могут быть высотными (выше 14 этажей), инженеры МНИИТЭПа применили интересное решение — внешние навесные панели, что облегчило конструкцию и позволило поднять этажность до 16-ти.
Квартиры бывают 1-, 2-, и 3-комнатные. Есть два варианта планировки подъездов (секций) башен II-68:
1) семь квартир: три однушки, а двушек и трешек по две,
2) девять квартир: семь однокомнатных и две двухкомнатные.
Также были разработаны и применялись проекты полностью блочных домов: II-68/02 и II-68/03, а также II-68/04 («дом-пила» или «дом-лесенка»).
Более того, на базе наборов деталей серии II-68-01 был создан ряд высотных многоквартирных жилых домов. К ним относятся панельно-блочные 22-этажные II-68-01/22 с пилонами-контрфорсами, а также серии жилых высотных домов, представляющие собой разновидности этой можификации — И-522А, И-491А, И-700А, И-701А, И-782.
Серия II-68 планировка типовой секции дома
Фото домов серии II-68-01Фото домов серии II-68-01/22Серия домов И-782
Модификация II-68-01/22
II-68 планировка с размерами
Перепланировка квартир II-68
Двухкомнатная квартира II-68/01, планы до и после перепланировки
Однокомнатная квартира II-68/01
Трехкомнатная квартира II-68/01
Планировка квартир серии II-68 и варианты перепланировки II-68
Причины, по которым требуется согласовать перепланировку в доме серии II-68
- Если Вам выдали штраф и предписание, а Вы не выполнили требование контролирующих органов – Вас могут выселить, а саму квартиру с несогласованной перепланировкой выставят на публичные торги.

- Вам нужно срочно приватизировать квартиру, но с несогласованной перепланировкой невозможна приватизация.
- Оценка безопасности планируемых работ по перепланировке.
- Вы планируете получить кредит под залог недвижимости, но из-за наличия несогласованной перепланировки банк Вам отказывает в выдаче денежных средств, так как квартира или помещение считается неликвидным.
- Снижение стоимости квартиры с несогласованной перепланировкой при продаже ниже на 20%, чем аналогичной квартиры без перепланировки.
- При продаже недвижимости в ипотеку, банк отказывается вкладывать финансы в объект с несогласованной перепланировкой.
Описание дома
Размещение квартир в секции
До перепланировки
Нужно срочно выполнить проект объединения квартир и согласовать выполненные работы в доме серии II-68? Получить подробную информацию по проекту объединения квартир и порядке согласования перепланировки Вы можете здесь: Перейти
Цены на согласование перепланировки в доме серии II-68
Планировка однокомнатной квартиры дома серии II-68
До перепланировки
Варианты перепланировки однокомнатной квартиры дома серии II-68
Планировка двухкомнатной квартиры дома серии II-68
До перепланировки
Варианты перепланировки двухкомнатной квартиры дома серии II-68
Планировка трехкомнатной квартиры дома серии II-68
До перепланировки
Какие работы запрещено выполнять при перепланировке
- Сносить несущие стены.

- Переносить или расширять дверные проемы в несущих стенах без предварительного обследования и выполнения проектной документации.
- Переносить санузлы на жилые помещения и на зону кухни.
- Объединять балконы//лоджии с внутренними помещениями квартиры. Подробнее о согласовании можно узнать здесь
- Увеличивать кухню или санузел за счет площади жилой комнаты.
- Увеличивать жилую комнату за счет площади кухни или санузла.
- Устаивать теплые полы в квартире за счет использования общедомовой системы отопления.
- Объединение комнаты и кухни с газовой плитой без установки двери.
Как мы будем с Вами работать
Как мы будем с вами работать
- Обращение Заказчика за выполнением работ по согласованию перепланировки нежилого помещения в жилом доме в следующей форме:
- телефонный звонок консультантам компании
- заполнение заявки на сайте компании
- отправка электронного письма с исходными данными по объекту (Планы БТИ, эскиз перепланировки, информация об объекте).



Получите коммерческое предложение на услугу
Блочные дома II-68, типовые планировки квартир II-68
два дома серии II-68
Серия блочных домов II-68 стала основой для создания целого ряда типовых зданий: II-68-02, II-68-03. Дома бывают исключительно башенного типа, с количеством этажей 12, 14 либо 16, часто спарены. Квартиры в домах одно-, двух- или трехкомнатные. Рассматривая типы домов, по времени постройки здания относят к брежневкам.
Главные достоинства серии домов II-68 в том, что в домах имеются противопожарная лоджия, грузопассажирский лифт, а площади квартир увеличены и комнаты изолированные. Каких-либо характерных недостатков дома этой серии не имеют. В ближайшей перспективе не планируется снос домов серии II-68.
Характеристики домов серии II-68:
Материал наружных стен — трехслойные или керамзитобетонные блоки, толщина которых — 30 см или 40 см соответственно. Внутренние стены составляют бетонные блоки толщиной в 39 см.
Перегородки гипсобетонные, толщиной 8 см. Высота потолков — 2.48 м.
Годы строительства — 1970-1980 г.
Города распространения — Москва, Новоивановское, Дзержинский, Ростов-на-Дону, Тольятти
Фотографии двух вариантов жилых секций серии II-68:
Однокомнатная квартира (1)
Общая площадь: 34.5 м2 Жилая площадь: 19.5 м2 Площадь кухни: 9.6 м2 |
Однокомнатная квартира (2)
Общая площадь: 30.5 м2 Жилая площадь: 14.7 м2 Площадь кухни: 7.8 м2 |
Двухкомнатная квартира (1)
Общая площадь: 50.2 м2 Жилая площадь: 28.2 м2 Площадь кухни: 11.1 м2 |
Двухкомнатная квартира (2)
Общая площадь: 40.3 м2 Жилая площадь: 24.7 м2 Площадь кухни: 8. |
Трехкомнатная квартира
Общая площадь: 64.5 м2 Жилая площадь: 46.3 м2 Площадь кухни: 7.8 м2 |
Не нашли то, что искали? Вернитесь к поиску планировок квартир по параметрам типового проекта. Поддержите проект, расскажите о tipdoma.com в социальных сетях:
Дома серии II-68-01/16 — планировки
II-68-01/16 — описание, характеристики, планировки
II-68-01/16 — Популярная московская серия блочных одноподъездных башен. Присутствует в подавляющем числе московских районов, застроенных в 1970-е-1990-е гг. По популярности может сравнится только с П-44. Серия спроектирована в конце 1960-х гг. Всего построено около 800 домов. В Москве дома серии II-68-01/16 построены в микрорайонах: Тёплый Стан, Коньково, Очаково, Кунцево, Строгино, Тушино, Зеленоград, Ховрино, Головино, Коптево, Дегунино, Бескудниково, Медведково, Отрадное, Бибирево, Останкино, Преображенское, Гольяново, Измайлово, Новогиреево, Рогожская застава, Текстильщики, Кузьминки, Выхино, Печатники, Нагатино, Чертаново, Орехово-Борисово, Капотня, Восточное и Западное Бирюлёво, Зюзино, а также Ярославское ш.
Благодаря компактным размерам дома серии II-68-01 хорошо вписываются в кварталы существующей застройкой поэтому их строили даже в центре Москвы (Красные ворота, ул. Таганская, Павелецкая).
В Московской области блочные башни серии II-68-01 построены в городах: Мытищи, Долгопрудный, Котельники, Дзержинский, Люберцы, Пущино, Одинцово и Одинцовский р-н (Заречье, Новоивановское), Троицк, Серпухов, Ленинский р-н (г. Видное и пос. Коммунарка), Солнечногорский р-н (Андреевка), Дмитровский р-н (Некрасовский).
Серия панельно-блочных домов II-68-01 сносу не подлежит, начало санации (капремонта) в Москве – 2000-е гг.
Визуально блочные башни серии II-68-01 узнаваемы по большим лоджиям: в широтой версии — по пять в ряд на передней части здания и по одной с каждого торца, в меридиональной версии торцевых лоджий нет, а пять рядов лоджий располагается с обеих сторон здания. Также на базе серии II-68-01 разработана уменьшения модификация II-68-01/14-83 с меньшим количеством квартир.
Все комнаты в домах серии II-68-01 изолированные. Во всех квартирах предусмотрены просторные лоджии. В каждом подъезде предусмотрен один пассажирский и одни грузопассажирский лифт. Санузлы в однокомнатных квартирах совмещенные, в остальных раздельные. Лестницы незадымляемые, с противопожарным балконом. Кухонная плита — электрическая, вентиляция естественная вытяжная, блоки на кухне и в санузле. Мусоропровод на лестнице, с загрузочным клапаном на площадке.
Также в группу серий II-68 входят: II-68-02/16М (2-секционный вариант II-68-01), II-68-01/14-83 (компактная модификация II-68-01/16), II-68-02/12К (многосекционный дом с балконами неправильной формы), II-68-03 (12-этажный блочный 3-секционный дом), II-68-04 (дом с V-образным секциями и с балконами, расположенными «лесенкой»), И-491 (3-секционный панельно-блочный 16-этажный дом), И-522А (3-секционный панельно-блочный 16-этажный дом), И-700 (22-этажная блочная башня).
Известны случаи, когда дома серии II-68-01/16 использованы в качестве гостиниц («Кузьминки», «Волга» и ряд других).
Подробные характеристики серии
| Подъезды | 1 |
| Этажность | от 5 до 16, наиболее распространенный вариант – 16. Первый этаж бывает как жилой, так и нежилой |
| Высота потолков | 2,48 м |
| Лифты | Один пассажирский (400 кг.) и один грузопассажирский (630 кг.) |
| Балконы | Лоджии во всех квартирах |
| Квартир на этаже | от 6 до 7 (широтные секции) от 8 до 9 (меридиональные секции) |
| Годы строительства | с 1969 до конца 1990-х гг. |
| Построенных домов | около 800 |
| Площади квартир | 1-комнатная квартира общая: 30-35 м², жилая: 15-19.5 м², кухня: 7.9-9.6 м² 2-комнатная квартира общая: 40-51 м², жилая: 25-32 м², кухня: 8.6-11 м² 3-комнатная квартира общая: 64-65 м², жилая: 46 м², кухня: 7.8 м² |
| Санузлы | Совмещенные в однокомнатных квартирах, в остальных раздельные.![]() |
| Лестницы | Обычные, без противопожарного балкона. |
| Мусоропровод | С загрузочными клапанами на каждом этаже. |
| Вентиляция | Естественная и принудительная вытяжная, на кухне и санузле. |
| Стены и перекрытия | Наружные стены – трехслойные бетонные панели толщиной 30 см. Внутренние бетонные блоки толщиной 39 см. Перегородки гипсобетонные 8 см. Перекрытия – многопустотные плиты толщиной 22 см. |
| Несущие стены | Наружные, а также часть поперечных межквартирных и межкомнатные. |
| Цвета и облицовка | Цвета: Коричнево-серый (ранние корпуса), серо-голубой (поздние корпуса), в настоящее время окрашивается в произвольные цвета. Облицовка каменной крошкой в ранних корпусах, облицовка плиткой в поздних корпусах. |
| Тип кровли | Плоская, с рулонным покрытием. Технический этаж: над верхним жилым этажом. |
| Достоинства | Наличие грузопассажирского лифта, вариативность планировок квартир, трехкомнатные квартиры. Стены в блочных домах типовой серии II-68-01/16 толще, чем у домов блочной серии-предшественницы И-209. |
| Недостатки | Затрудненная механическая обработка керамзитобетонных наружных стен. |
| Производитель | Бескудниковский КСМ (в наст. время входит в корпорацию Главстрой) |
| Проектировщик | МНИИТЭП (Московский НИИ типологии и экспериментального проектирования) |
Серия 1605-АМ/9 12 Серия 1МГ-600 Серия 1МГ-601 Серия 1МГ-601-441 Серия 1МГ-601Д Серия 1МГ-601Е Серия 1МГ-601Ж
Серия 1МГ-601Ж гостиничная Серия II-18/12 Серия И-209А Серия II-68-01/14-83 Серия II-68-02/12К
Серия II-68-02/16М Серия II-68-03 Серия II-68-04 Серия 1-515/9 Серия II-29 Серия II-49 Серия И-760А Серия Башня Вулыха
Серия II-67 Смирновская Серия И-III-3 Серия II-67 Тишинская Серия II-67 Москворецкая Серия И-491А Серия И-521А
Серия И-522А Серия И-700А Серия И-700АЯ Серия П-30 Серия П-3 Серия П-4 Серия П-22К Серия П-42 Серия П-43
Серия КОПЭ Серия П-44 Серия П-46 Серия П-55
Дома серии II-68 – технические особенности и возможности для перепланировки квартир
Дома II-68 знакомы многим москвичам.
Серия активно использовалась застройщиками с 1970 по 2000 год практически во всех районах. В статье рассмотрим ключевые особенности жилых домов II-68 в разных модификациях и остановимся подробнее на доступных вариантах перепланировки.
Жилые дома серии II-68 (иногда называются П-68) появились 1970 году. Именно тогда институт МНИИТЭП представил проектную документацию на согласование столичного правительства, которое одобрило начало строительных работ. Активное возведение продолжалось до 2000 года, причем постепенно здания проекта начали появляться в российских регионах – Петрозаводске, Тольятти, Рязани, Симферополе. Утверждать, сколько именно корпусов (оригинальных и модификаций) возведено на территории современной России сложно – серия II-68 долгое время считалась ключевой для застройщиков. С учетом периода разработки и строительства, дома относятся к классу “брежневок”.
Описание
СодержаниеПоказать
При возведении домов использовалась классическая блочно-панельная технология.
Проект подразумевает 12-, 14-, 16-этажные дома, которые могут объединяться в многосекционные комплексы. Альтернатива – односекционные строения башенного типа. В каждой секции есть грузовой и пассажирский лифты, классические парадные и незадымляемые лестничные клетки с утеплением.
Проектная документация подразумевает одно-, двух- и трехкомнатные квартиры с собственными лоджиями. Остекление по умолчанию не предусмотрено, но практически все собственники сразу после получения помещений монтировали балконные рамы. Дополнительные балконы присутствуют на лестничных клетках. Из-за специфики внешнего вида, секции в народе прозвали “дома-лесенки”.
Проект подразумевает возможность длительной эксплуатации зданий без обязательного сноса. При этом документация требует проведения капитального ремонта фасадных панелей и подъездов. Сейчас достоверно неизвестно, сколько секций, из построенных за 30 лет, прошли требуемое техническое обслуживание.
Конструктивные особенности серии и отделка фасадов
Если не вдаваться в технические подробности, то дома серии – классические “брежневки”.
Часть корпусов, построенных до 1980 года, получили фасады, окрашенные в темно-серый цвет. Впоследствии застройщики изменили дизайн и использовали светло-голубую краску, а в случае с высотными корпусами – навесные панели аналогичного цвета. Рассмотрим особенности жилых зданий более подробно.
Строительные конструкции
Параметры строений частично отличаются в зависимости от этажности. В частности, особенности касаются наружных стен:
- 12-этажные корпуса – керамзитобетонные блоки толщиной 40 см;
- 14-этажные – трехслойные керамзитобетонные навесные панели с утеплителем толщиной 30 см;
- 16-этажные – аналогично 14-этажным корпусам (отличия есть в распределении квартир на этажах).
Независимо от количества этажей, несущие и часть внутренних стен керамзитобетонные (40 см), межкомнатные и межквартирные перегородки – гипсокартон (8 см). В качестве междуэтажных перекрытий – плиты ЖБК толщиной 22 см.
Все секции домов серии II-68 оснащаются стандартными для блочно-панельных домов подвальными помещениями, вытяжной вентиляцией.
Кровля плоская с покрытием из рулонных материалов. Конструкция предусматривает внутреннее водоотведение для дождевой воды и талого снега, а также дополнительный технический этаж. Каждое строение комплектуется двумя лифтами (грузовой и пассажирский), стандартным мусоропроводом. Застройщики комплектовали квартиры электрическими кухонными плитами (газификация не предусмотрена). Отопление – централизованное, водяное.
Стандартные дома серии II-68 имеют существенный недостаток относительно аналогов – слишком низкие потолки. Высота – всего 2,48 или 2,64 м, что допустимо СНиПами, но доставляет некоторый дискомфорт для собственников. Так, при проведении квартирного ремонта усложняется монтаж подвесных потолков, прокладка проводки.
Модификации серии II-68
В период с 1970 по 2000 год возводилось более 10 видов зданий рассматриваемой серии. Остановимся подробнее на модификациях, которые встречаются чаще всего:
- II-68/02, II-68/03 и II-68/04 – полностью блочные варианты, со стандартными планировками и прочими техническими особенностями;
- II-68-01/22 – высотная модификация (22 этажа), при возведении которой использовались пилоны-контрфорсы;
- II-68-01/16 и II-68-02/16М – компактные одно- и двухсекционные варианты, которые добавляли в уже обустроенные кварталы;
- II-68-02/12К – версия для жилищно-строительных кооперативов, отличается балконами в виде неправильных прямоугольников, которые расположены только по одной стороне фасада (не считая лоджий на лестничных клетках).

Серия стала основой для других панельных зданий, распространенных по территории современной России. Среди примечательных: И-491, И-522А, И-700 и ПБ-01.
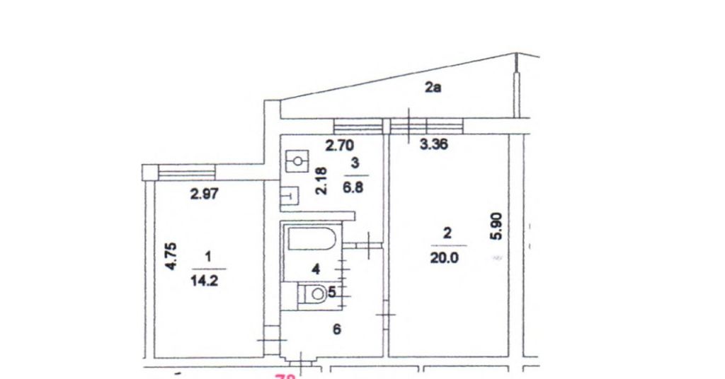
Дом серии II-68 – планировка с размерами
В соответствии с технической документацией, существуют квартиры с 1, 2 и 3 жилыми помещениями. Однушки при этом выполнены стандартно вне зависимости от существующих модификаций. Для остальных существует несколько разных планировок. Сразу же стоит отметить ряд нюансов – в каждой квартире предусмотрен большой балкон (в некоторых – 2), помещения всегда изолированные, а туалет и ванная – раздельные. Далее рассмотрим характеристики типовых планировочных решений с размерами.
Планировка 1-комнатной квартиры с размерами
Однушки существуют в единственном исполнении, оснащаются широким балконом и окном в кухне. Параметры помещений:
- кухня – 3,58×2,44 м.;
- жилая комната – 5,82×3,59 м.
Прихожая во многих модификациях квадратная, оборудована нишей, в которой можно обустроить встроенный шкаф.
Общая площадь – до 34 м2.
Планировка 2-комнатной квартиры с размерами
Двушки представлены в двух вариантах – продольном (окно в одной плоскости с балконом) и компактном (параллельное размещение проемов). Рассмотрим параметры первого варианта:
- кухня – 3×3,3 м.;
- 1 комната – 2,75×4,3 м.;
- 2 комната – 3,32×5,83 м.
Габариты в случае компактного размещения:
- кухня – 3×3,8 м.;
- 1 комната – 2,8×4,14 м.;
- 2 комната – 3,33×4,97 м.
Площадь варьируется от 40 до 50,2 м2 в зависимости от планировочного решения.
Планировка 3-комнатной квартиры с размерами
Для 3-комнатной квартиры существует две модификации. При одинаковой общей площади в них немного отличаются размеры помещений. В первом случае:
- кухня – 2,54×3,1 м.;
- 1 комната – 3,08×2,94 м.;
- 2 комната – 2,98×4,51 м.;
- 3 комната – 3,51×5,88 м.
Во втором случае:
- кухня – 2,54×3,1 м.
; - 1 комната – 3,04×2,98 м.;
- 2 комната – 3,02×4,5 м.;
- 3 комната – 3,57×5,86 м.
Каждая модификация имеет по три окна и по одному выходу на балкон, который не совмещен, как в случае с однушками. Площадь – 65,6 м2.
Дополнительная информация о доме серии II-68 для согласования перепланировки
Любой дом серии II-68 поддается модернизации силами жильцов. В квартирах располагается минимальное количество несущих стен, что позволяет изменять конфигурации помещений с минимальными трудностями. Несмотря на такую особенность, любая перепланировка должна быть узаконена через Жилищную комиссию и прочие контролирующие инстанции.
Типовая перепланировка из каталога МНИИТЭП
Институт МНИИТЭП не только разработал серию домов II-68, но и варианты изменения квартир. Все оптимальные модификации собраны в каталог с фотографиями, чертежами и пояснениями. Как правило, подобную документацию можно попросить в Управляющей компании или БТИ.
Найти сведения можно и в интернете – МНИИТЭП разместили их в свободном доступе для изучения и практического применения.
Однокомнатная квартира
В ходе перепланировки собственники могут объединять туалет и ванную, полностью или частично снося перегородку между ними. При этом инженеры рекомендуют обеспечивать дополнительную гидроизоляцию пола в получившемся помещении. Дальнейшие действия подразумевают объединение кухни с жилой комнатой, за счет чего можно сформировать довольно просторную студию.
Также читайте на нашем сайте статьи: перепланировка однокомнатной квартиры, перепланировка двухкомнатной квартиры, перепланировка трехкомнатной квартиры.
Двухкомнатная квартира
Общий список возможных изменений практически идентичен варианту с однушкой. Однако за счет переноса входной группы в кухню (за счет объединения для получения гостиной), удается увеличить площадь санузла. Фактически, к нему добавляется часть прихожей.
Последняя станет коридором между большой гостиной и второй жилой комнатой. В квартирах в прямоугольной прихожей возможно возведение небольшого гардероба без существенного уменьшения площади.
Примечательно: при создании гостиной придется формировать проем в несущей стене. В соответствии с рекомендациями МНИИТЭП использовать конструкции для усиления стены при этом не надо.
Читайте на нашем сайте больше о том, как сделать согласование перепланировки квартиры, как узаконить перепланировку, а также как произвести согласование перепланировки нежилого помещения.
Трехкомнатная квартира
Изменение планировки по официальной документации от МНИИТЭП практически полностью аналогично варианту с двушкой. Здесь можно сформировать полноценную гостиную и немного увеличить санузел. Две комнаты из трех объединять не рекомендуется. Изменения в несущей стене между ними Жилищная инспекция может не согласовать даже если при работе добавятся усиляющие конструкции.
Бесплатная консультация
Акция -20% за заказ согласования перепланировки!
| Услуга | Стоимость | Срок (Рабочих дней) |
| Консультация | » data-order=»0 р.»> 0 р. | — |
| Получение разрешения на перепланировку без затрагивания несущих конструкций | от 29 000 р. | от 1,5 мес. |
| Получение разрешения с затрагиванием несущих конструкций | » data-order=»от 39 000 р.»> от 39 000 р. | от 2 мес. |
| Согласование ранее выполненной перепланировки квартир | от 49 000 р. | от 3 мес. |
| Согласование перепланировки квартиры «под ключ» | » data-order=»от 59 000 р.»> от 59 000 р. | от 2 мес. |
| Согласование перепланировки квартиры + внесение изменений в ЕГРН «под ключ» | от 69 000 р. | от 2 мес. |
| Получение разрешений с затрагиванием несущих конструкций в панельных домах | » data-order=»от 119 000 р.»> от 119 000 р. | от 3 мес. |
Отзывы
Заказывали проекты перепланировки с очень большим количеством нюансов и изменений. Было мнение что все это сделать не реально,тем более законно. Сотрудники Soplan качественно выполнили работу и общими усилиями нашу задумку перенесли на бумагу. Мы смогли и пройти все инстанции без каких либо проблем. Мы очень благодарны и рекомендуем всем Вашу фирму.
Долгов Павел
Нужно было узаконивание перепланировки не жилого помещения. Выполнили все хорошо, учитывая все наши причуды помещению. Заказывала полное сопровождение. Были две встречи на моей территории, потом сразу подготовили всю документацию. Вот в принципе и все. Спасибо за легкость от данного процесса.
Ведехина Ольга
Позвонил, сделал заказ по перепланировки квартиры.
Приехали замерили, учли пожелания. Через две недели курьер привез готовые документы. Вот так все просто. Спасибо за работу.
Скрябин Евгений
Обратились сюда и не пожалели ни на одном из этапов по перепланировке нашей квартиры. Хочу отметить демократичность цен в сравнении с некоторыми компаниями, в которые я обращалась, по описанию услуга та же самая, но в разу дороже. В общем меня эта компания взяла ценой, а по итогу я была удовлетворена и качеством и сроком исполнения работы.
Носонова Анна
Получите бесплатную консультацию и
предварительный расчет стоимости работ Помните: для этого контента требуется JavaScript. Акция -20% за заказ согласования
однушка в доме серии II-68 — INMYROOM
Блочные дома серии II-68 – башенного типа, имеют 12, 14 или 16 этажей и начали строиться в так называемый «брежневский период». Наличие лоджии и кладовой – отличительная особенность квартир, которые в этих типовых домах есть как одно-, так и двух- и трехкомнатные.
Сегодня мы рассмотрим три варианта перепланировки однокомнатной квартиры для разных типов жильцов.
Вариант № 1
Квартира для семьи из 3 человек с детским уголком
Санузел расширен за счет прихожей. Появилось место для стиральной машины. Перегородка между комнатой и коридором демонтирована. Вход в кухню немного перемещен и расположен под углом. Сама кухня стала больше за счет перемещения перегородки с санузлом.
Комната разделена на две зоны: зона гостиной (она же зона родителей) и зона ребенка (детский уголок с кроватью, столиком и стеллажами детской). Перегородка детской зоны выполнена на высоту 2 метра.
Плюсы. Вариант № 1 позволяет жить на 30 квадратных метрах втроем с ребенком. Кухня осталась изолированной. У ребенка есть свой закрытый уголок, что способствует здоровой атмосфере в семье.
Минусы. Уменьшилась прихожая. Родители без полноценной двуспальной кровати (можно заменить диван на усмотрение хозяев).
Вариант № 2
Квартира для семьи из 2 человек с рабочим местом
Санузел расширен за счет прихожей.
В отличие от предыдущего
варианта, часть прихожей слева от входной двери сохранена. Появилось место для
стиральной машины. Перегородка между комнатой и коридором демонтирована. Вход
в кухню перемещен к окну и расширен.
Комната разделена на две зоны: спальная зона с двуспальной кроватью и рабочая зона у окна. Зоны разделяет узкая перегородка (шириной 1 метр и на всю высоту комнаты), а также большой комод с ТВ.
Плюсы. Кухня осталась изолированной. Полноценная кровать и рабочая зона для одного из супругов (позволяет комфортно работать на дому).
Минусы. Сложно принять гостей, так как квартира исключительно для семьи.
Вариант № 3
Квартира для холостяка или семьи из 2 человек с открытой кухней
Санузел расширен за счет прихожей. Появилось место для
стиральной машины. Все перегородки,
кроме санузла, демонтированы, создавая open-space.
Зонирование гостиной и кухни осуществляется за счет узкой перегородки посреди
квартиры и разным покрытием пола (ламинат для гостиной и кафельная плитка для
кухни и прихожей).
Наличие рабочего места.
Плюсы. Вариант больше всего подойдет холостяку. «Не давят» стены маленькой квартиры, есть место для работы, можно смело приглашать гостей.
Минусы. Совмещение кухни с жилыми пространствами дает определенный дискомфорт из-за запахов при готовке. Диван вместо кровати.
СТРАНИЦА 68 — Декабрь 2007 г.
1 декабря 2007 г. Карл Арендт
HOTIDEASFORSMALLRAILR OADS
ПУТЕШЕСТВИЯ ПО ЛУЧШИМ КРУГАМ
Одна из старейших традиций в модельном строительстве железных дорог — древняя модель железных дорог. в курортный сезон. Так что этот месяц — подходящее время, чтобы подумать о том, что происходит с овальными макетами в наши дни … и ответ: довольно много!
От очень ярких пейзажей до хорошо функционирующих железных дорог в миниатюре — циркулирующая планировка по-прежнему доставляет немало удовольствия для хобби.
Итак, вперед по кругу! И здесь, на этой странице, собрано удивительное разнообразие примеров восхитительной работы, которая в настоящее время выполняется «непрерывно» во всем мире, так сказать.
Всех с праздником!
Carl
ПОЕЗДА И ПРАЗДНИЧНЫЕ ДИСПЛЕИ СДЕЛАНЫ ДЛЯ ДРУГОВ!
Говард Лерой Лэми, из Джексонвилля, Флорида, США, строит то, что он называет «блестящими домами» — стиль картонных структурных моделей, которые украшали каминные полы 50 еще много лет назад и которые сопровождали многие ранние макеты поездов под праздничное дерево (см. Scrapbook # 67, где можно найти несколько примеров работ Говарда крупным планом).
Каждый год Ховард складывает свою текущую коллекцию блестящих зданий вместе с парой овалов трассы HO E-Z на доске размером 4×5 футов, чтобы сформировать железную дорогу Pine Mountain Valley Railroad , восхитительную рождественскую экспозицию, показанную здесь. Ховард пишет: «Простые поезда или троллейбусы на простых овалах с маленькими картонными домиками … это возвращает меня в конец 40-х и начало 50-х годов … отличных праздников!»
ЗДЕСЬ ОВАЛЬ, ПРЕДНАЗНАЧЕННЫЙ В КАЧЕСТВЕ ПОЛКА!
Фото Стива Фуллджеймса
На английской выставочной площадке, вызывающей восхищение, является Crackington Quay , построенная Roy Parkes .
Это O-16.5 / On30 (7-миллиметровая шкала на гусенице 16,5 мм), и он выиграл мемориальный трофей Дэвида Ллойда на ExpoNG 2007, где Стив Фуллджеймс, снял восхитительную панораму выше, и многое другое. Предполагается, что ветка идет слева и заканчивается на этой станции, за исключением продолжающейся ветви к карьере, которая выходит справа. Так что план заслуживает права на скрытую овальную связь! На момент написания этой статьи Рой сообщает мне, что он удалил макет из выставочной схемы.
САДОВЫЕ ОВАЛЫ ДЕЛАЮТ СМЫСЛ, ОСОБЕННО ДЛЯ РАБОТЫ В РЕЖИМЕ ЖИВОГО ПАРА
Джон Энджелл, из США.К. прислал мне схему пути слева внизу — «микро» схему, предназначенную для крупномасштабных поездов! Джон объясняет: «Я только что набросал начальную схему для новичка в садоводстве. В макете всего две точки [стрелки]! Предполагается, что оператор находится в центре сада, поэтому расположение кажется больше, чем есть на самом деле, потому что вам нужно повернуть направо, чтобы посмотреть на поезда, или, альтернативно, позволить поездам исчезнуть из поля зрения позади вас.
«Есть непрерывный ход для паровозов, ветка, возможность маневровой [переключения].Более того, маневрирование может происходить, пока локомотив движется по внешнему кольцу ». Такое расположение позволяет выполнять довольно много операций с использованием очень простых средств!
Чтобы показать, как хороший план пути может находить отклик в течение многих лет, я также включил (внизу справа) эскиз самого первого проекта компоновки железной дороги из журнала Model Railroader, опубликованный еще в 1952 году! По совпадению, они выбрали идентичный план для своей линии HO 4x6ft, потому что она предлагает так много железных дорог с относительно небольшими затратами времени и денег.Хорошие идеи в планировании трассы, как правило, остаются, и этот овальный план зарекомендовал себя уже более полувека!
ДЛЯ КОМПАКТНЫХ ОВАЛОВ ТРУДНО ПРЕОДОЛЕТЬ 3-РЕЛЬСНЫЙ ОВАЛ
Майкл-Джон Идзерда, из Торонто, Канада, давний приверженец шкалы N.
макет. Используя существующий плинтус 3×5 футов и несколько поездов Лайонела, которые он и его отец купили в 1970-х, M-J построил макет, который вы видите здесь. Ясно, что проявив изобретательность, вы можете разместить огромное количество гусениц на очень маленьком пространстве! Еще в масштабе O!
На плане изображен овал O27 с четырьмя боковыми ветками для переключения — три в одном направлении и один в противоположном направлении, в другом направлении, просто для интереса.Мне особенно нравятся скрещенные шпоры в передней части макета. M-J также втиснула подвесную тягово-вытяжную линию, которая в конечном итоге будет использоваться троллейбусом Lionel.
Наконец, почему площадь основания 3×5 футов? M-J по профессии техник по работе с органной трубкой, а доска была от церковного органа, который он ремонтировал недалеко от Торонто. Это была монтажная коробка для «упора арфы», ряда настроенных металлических стержней внутри органа, по которым удары молотков с мягкой подкладкой создают особый ударный эффект.
Этот особый механизм остановки арфы был переустановлен внутри органа, а его бывшая монтажная доска была унесена для других вдохновляющих целей! Остальные упоры арфы до повторной установки показаны в правом нижнем углу.В модельных рельсах будут использоваться любые материалы, которые они найдут!
ПЛАНЫ МОГУТ ИЗМЕНИТЬСЯ ВО ВРЕМЯ СТРОИТЕЛЬСТВА
| ДО | ПОСЛЕ |
Макеты железнодорожных моделей обычно меняются только во время строительства, но обычно строители знают о многих изменениях. об этом, и то, что мы видим, является окончательным результатом. Расс Хей, , частый автор этих страниц, живущий в Уиллоуби, штат Огайо, США, предоставил фотографии «до» и «после» своего текущего проекта макета, Rattlesnake Hollow , линии On30 / On18, построенной на старой 19½x28½in [ 50х72см] каркас плинтуса.На этапе «До» Расс описал схему как «петлю из On30 [толщина 16,5 мм] на нижнем уровне со скрытой ступенью и видимым отливом руды, питаемым петлей из On18 [толщиной 9 мм] над ней».
Два месяца спустя та же плинтус выглядела как после кадра. « Rattlesnake Hollow теперь в основном состоит из пенополистирола и немного похудел», — сообщает Расс. Он также прислал снимок верхнего этажа с локомотивом в стиле Бейера-Гаррета. Мне не терпится увидеть, что будет дальше!
WATER WORKS OVAL УСТАНОВЛЕН В ТЯЖЕЛЫЙ СТРАНЕ
Патрик Коллинз, из Ромси, Хэмпшир, Англия, был вдохновлен этим сайтом, чтобы фактически завершить макет… впервые за 25 лет моделирования! И это жемчужина — 24x20in [60x50cm] Wintoncester Water Works , созданная под влиянием настоящих узкоколейных железных дорог, таких как те, которые когда-то существовали в долине Бреде в Восточном Суссексе (представлены на этом сайте).Пэт комментирует: «Модель находится в Верхнем Уэссексе (как в романах Томаса Харди) и представляет собой уголок произведений. Линия продолжается до других насосов и печи для обжига извести, что дает повод для непрерывной работы, когда я устаю маневрировать! » Пэт также прислал шутливый снимок своей линейки с изображением «4-8-2-2-8-4 Бейер Гаррет, созданный другим членом Wessex NG Modellers Яном Тернером — самый большой локомотив, который я смог найти для конюшни на запасном пути (там он никак не мог объехать эти кривые!).
”
МНОГИЕ МИКРО СОЗДАЮТ МОДЕЛИ СМЕСИ!
Установление нового рекорда сайта по количеству макетов, показанных в одном выпуске альбома для вырезок — Джеймс Макмиллин, из Сент-Джона, Нью-Брансуик, Канада. Недавно он представил четыре макета на выставке поездов в Сент-Джонсе, и все они представляют собой непрерывные цепи и изображены здесь!
Сын Джеймса, Шамус (вверху слева) демонстрирует два макета. Topdown Shortline — это линейка петель Hon30, встроенная в металлический портфель и представленная в Scrapbook # 49.Другой макет представляет собой небольшую петлю в масштабе N, построенную на обрезке упаковки из пенополистирола. Задник сделан из гофрированного пластика и делит макет на две части — вторая половина показана на картинке слева внизу.
Строящийся круговой план (вверху справа) , вариант моего дизайна Columbus Circle , представляет собой схему развязки винодельни / пивоварни между железными дорогами On30 и On18.
Небольшая дорога On18 (колея 9 мм) доставляет бочки с мелко ферментированным продуктом в гондоле HOn30 YSL к крытому вагону (специально построенному для этой цели) на гораздо более крупной 30-дюймовой линии (16.5 мм) для поставки на рынок. Локомотив On18 — один из проектов Barry McClelland, созданных в воображении. Джеймс комментирует, что создание этой линии — изнурительная работа: «Я все время испытываю желание пойти за пивом, когда работаю над этим».
Четвертый макет (внизу справа) представляет собой головоломку с переключением HO размером 96×6 дюймов [244×15 см]. По словам Джеймса, задача состоит в том, чтобы переместить товарные вагоны в новые места (нарисованные наугад) до того, как RDC (который ждет на обоих концах макета, как театральные крылья) войдет в станцию на главной линии.Если вы используете таймер для яиц и даете себе 10 минут, это может стать проблемой ».
Чем ближе вы получаете, тем лучше выглядит
Бертрам Кауэрт, из Берлина, Германия, построил эту восхитительную небольшую компоновку гравийной шахты H0e / HOn30 в специально построенном корпусе 12 мм (½ дюйма) фанера.
Плинтус из пенопласта имеет размеры 79×35 см [31×14 дюймов], и «его можно легко вынуть из ящика, чтобы я мог использовать корпус для другого микрокомпоновки, который будет построен когда-нибудь в будущем.» Планировать заранее!
Основной ландшафт сформирован из кусочков пенопласта, покрытых смесью разбавленного клея ПВА и песка с берега Балтийского моря, который также используется для балласта. Бертрам объясняет: «Рельсы образуют овал с коротким путем для разгрузки и еще одним коротким путем до старого ремонтного цеха. Овал исчезает слева за холмом. Поезда можно останавливать прежде, чем они снова появятся справа из-за деревьев ». Использование Бертрамом природных элементов (например, большой лужи), модельного оборудования, транспортных средств и человеческих фигур демонстрирует, насколько эффективными могут быть мелкие детали на микромонтаже — здесь, безусловно, есть на что посмотреть!
РАБОТА С ЖЕЛЕЗНЫМИ ДОРОГАМИ ПОД ТАБЛИЦЕЙ
Часто проблемы моделирования могут привести к очень творческим решениям, и это, безусловно, случай с этим макетом в масштабе N, Franzbourg , построенный Francesco Zezza, из Рима, Италия.
Проблема была в нехватке места. Решением Франческо стал самодельный выдвижной ящик под его столом, сконструированный как лоток для компьютерной клавиатуры. Макет просто выдвигается для работы или моделирования и откатывается обратно, когда он не используется.
Ландшафтный дизайн представляет собой небольшой городок Францбург, названный в честь прозвища Франческо и выбранный так, чтобы звучать по-немецки … Поезда имеют немецкую шкалу N, и пейзаж должен выглядеть так, как будто «где-то в Германии солнечным утром ранней весны.Крупный план (внизу справа) показывает качество моделирования в масштабе N на этом небольшом макете.
Франческо также искренне благодарит Итальянскую ассоциацию железнодорожных моделей (AMICI scala N) и всех членов дискуссионной доски Forum ASN за их важную помощь.
ЦЕПЬ TT СТАНОВИТСЯ С 1953 г.
Древняя вырезка (вверху слева) взята из каталога HP Products TT в середине 1950-х годов.
Ray Boss (справа) , создавший этот микромонтаж в 1953 году, сейчас живет в Уотерфорде, штат Коннектикут, США, и до сих пор активно занимается моделированием (ему только что исполнилось 80). Недавно он выкопал свою старую оригинальную планировку ТТ и отремонтировал ее (окрашенные в зеленый цвет опилки через 50 лет становятся уродливыми). Результат (вверху справа) отлично выглядит и хорошо работает!
Джерри Голембовски, сейчас из Гранди, Северная Каролина, США, давний друг Рэя и товарищ по тестированию.Джерри недавно посетил Рэя, сделал эти фотографии и предоставил некоторую информацию об этом историческом месте. «Макет, сделанный в деревянной коробке, похожей на чемодан ручной работы, имел размеры всего 12×24 дюйма [30×60 см] и имел особенности движения, включая водяное колесо, человека, качающегося в кресле, и собаку, виляющую хвостом перед старой мельницей … HP Ripple Track неплохо зарекомендовал себя и потребовал лишь небольшого ремонта, а его модифицированный Lindsay / Kemtron Dockside все еще легко преодолевает кривые с радиусом в четыре дюйма .
..
«Этот макет, пожалуй, один из первых (микротип), который получил широкую огласку в модельной прессе, а выборочное сжатие структур и декораций является уроком для моделистов любого масштаба.Я знаю, что когда-то мой интерес к TT пробудил ». Большое спасибо за радостную весть, Джерри!
РАСШИРЕННЫЙ ПЛАН ПИЦЦЫ ДАЕТ СЦЕНОВЫЕ ВОЗМОЖНОСТИ
Брайан Рэтлифф, из Белвью, Небраска, США, строит этот 51x28in [130x71cm] макет HO, Евклид-дельта-Рейндж-дель-Мисс и регион холмов, расположенный между . Можно добавить больше деталей и анимации, например, мигающий переход и костры в палаточном лагере.Брайан также добавляет прибавку размером 36 x 8 дюймов [90 x 20 см] от развязки сзади слева, чтобы улучшить работу. Его вдохновили макеты пиццы на этом сайте!
НЕОБЫЧНЫЙ МАСШТАБ ОСОБЕННОСТИ СЦЕНИЧЕСКОЙ НЕДВИЖИМОСТИ ЖЕЛЕЗНАЯ ДОРОГА
Майкл Денни, из Гуэлфа, Онтарио, Канада, решил использовать редко моделируемую комбинацию шкалы и датчика и создает микромонтаж, Pete’s Pumpkins, 1n12 — масштаб 1:32 для калибра 9 мм, что представляет собой прототип линейки универсалов калибра 12 дюймов.
Он описывает и фотографирует строительство в блоге. Поскольку это была первая попытка Майкла создать очень маленький макет, он резюмирует свой опыт в своем блоге следующим образом (перепечатано с разрешения):
«Проект был отличным опытом обучения, и я считаю, что он подчеркивает некоторые из выигрышных характеристик строительство микро / малой модели железной дороги. Во-первых, пространство легко найти, поскольку любую модель железной дороги площадью два квадратных фута или меньше можно легко хранить и транспортировать … Во-вторых, небольшой размер позволяет вам испытать все аспекты построения модели в гораздо более короткие сроки … В-третьих, неотъемлемая [невероятная] природа микро / маленькой модели железной дороги позволяет строителю проявлять творческую свободу… строитель может экспериментировать, рисковать и «воображать» по своему усмотрению… Эта свобода в конечном итоге формирует мою четвертую точку : микро макеты — это весело! »
ЧТО ПРОИСХОДИТ, КОГДА O-SCALER ПРИНИМАЕТ ПЛАН ГОРОДА…
Кейси Стербенз, из Крофтона, Мэриленд, США, давно занимается моделированием O-шкалы (и является членом О Короли Масштаба).
Недавно он построил для своего внука макет HO 4×5 футов, и результаты были замечательными. Кейси начал с плана пути для Stockton & Darlington RR , который является планом № 1 в классической книге Линна Уэсткотта «101 план пути для модельных железнодорожных компаний» (Kalmbach).
Самое важное, что Кейси внес в план, помимо его некоторого увеличения для обработки кривых с радиусом 18 дюймов, — это поменять местами гусеницы низкого и высокого уровня. Это сделало возможным двупутный двор и поворотную площадку на одном конце.
Фундамент для макета (справа) Кейси описывает как «два небольших книжных шкафа, 24 дюйма в высоту и 30 дюймов в ширину. Я поставил по два ролика на каждый и соединил их с L-образными балками. Затем последовал легкий каркас из планок обшивки 1x2in для поддержки столешницы. Я сделал центр стола открытым для оператора. Маленьким детям очень нравится быть в центре событий! Наконец, была добавлена столешница для формочки для печенья ».
Конечный результат — действующая железная дорога HO на относительно небольшом пространстве.
Но, по сути, O-scaler, Кейси заметил: «Схема, которую я построил в HO, может стать основой для схемы 4×8 футов 0n30».
ТОМАС ТАНКОВЫЙ ДВИГАТЕЛЬ ПРОДОЛЖАЕТСЯ В N
Крис Коттон, из Саутпорта, Англия, построил этот красивый микромонтаж в масштабе N 26 x 22 дюйма [66 x 56 см] с Томасом Паровозиком для своего сына, которого зовут — что еще? — Thomas (вверху слева) . Ему четыре года.
План трассы представляет собой простой овал с двумя выступами внутри.Берти (красный автобус) — модель P&D Marsh, с добавлением лица Берти из домашнего трансфера. Томас (локомотив), показанный во время работы Томасом (мальчиком), принадлежит компании Tomix (производитель) из Японии, и, без сомнения, компоновка работает, когда Томас (пищевая компания) ест английские маффины!
ЭКСПЕРИМЕНТ В ПРИНУДИТЕЛЬНОЙ ПЕРСПЕКТИВЕ
Американец Тад Картер строит этот макет HO размером 65×45 дюймов [165×114 см].
План трассы представляет собой овал магистрали и ответвление, ведущее в городок Хейс с его небольшим двором.Обратите внимание, что переключающий провод (главный шунт) пересекает магистраль под углом, что должно создавать некоторые интересные рабочие препятствия! Тад только приступил к созданию декораций и экспериментирует с использованием зданий в масштабе N, чтобы создать ощущение расстояния. Пока еще рано говорить, как все это будет работать, но ранняя версия показана ниже справа.
СУПЕР СТАНДАРТ КОНСТРУКЦИЙ S-SCALE SCRATCHBUILT STRUCTURES SET
Фред Стефенсон, из Оверленд-Парка, штат Канзас, США, профессиональный архитектор на пенсии, основной энтузиазм которого заключается в создании конструкций.Его макет 3×6 футов построен в масштабе Sn42 — масштабе 1:64 на колее 16,5 мм. План трассы представляет собой базовый овал со шпорами и обходным сайдингом (петлей), спрятанным сзади для возни.
Но основное внимание Фреда уделяет строениям, которые в основном представляют собой построенные с нуля модели реальных зданий в его родном городе Челси, штат Мичиган, США, на бывшей центральной железной дороге штата Мичиган.
Самая узнаваемая достопримечательность — башня с часами, которая является доминантой на двух из этих фотографий и историческим центром внимания в Челси.Судя по видимым автомобилям, макет Фреда находится где-то в 1920-х годах.
Редактор раскладки клавиатуры
Цвет легенды:{{colorName (multi.default.textColor)}}
Ключевой цвет:{{colorName (мульти.цвет)}}
Переключатель: {{(multi.
sm || meta.switchMount)? переключатели [multi.sm || meta.switchMount] .name: ‘Mount N / A’}}
{{(мульти.сб || meta.switchBrand)? переключатели [multi.sm || meta.switchMount] .brands [multi.sb || meta.switchBrand] .name: ‘Brand N / A’}}
{{(multi.st || meta.switchType)? переключатели [multi.sm || meta.switchMount] .brands [multi.sb || meta.switchBrand] .switches [multi.st || meta.switchType] .name: ‘Switch N / A’}}
Разное:GhostedSteppedHomingDecal
{{палитра.
name}} (подробнее) Щелкните образец, чтобы установить цвет выбранной клавиши (клавиш), или Ctrl + щелчок, чтобы установить цвет текста. Вы также можете перетащить образцы цвета на отдельные легенды, чтобы установить разные цвета для каждой из них.{{customStylesException}}
Скачать JSON Загрузить JSON
{{deserializeException}}
Заголовок: {{meta.name}}
Автор: {{meta.author}}
| Сводка размеров ключей | ||
|---|---|---|
| {{k}} | {{v}} | |
| Обзор коммутаторов | ||
|---|---|---|
| {{k}} | {{switchNames [k]}} | {{v}} |
Распечатать сводку
Mili Kotian — На главную | Facebook
Beauty — это лучшая из возможных версий вас.
Очень важно раскрыть истинный потенциал того, насколько красиво и сияюще вы можете выглядеть, что можно сделать, только изучив ткани и мышцы, поддерживающие вашу кожу. Человеку, работающему с вашей кожей, лучше быть достаточно квалифицированным и знать, что лучше всего подходит для вас и вашей кожи. MILI имеет более чем 16-летний опыт работы в сфере красоты и ухода за волосами. Это она знает, что лучше всего подходит для вашей кожи. Повторные посещения более чем 90% клиентов свидетельствуют о том, что она является экспертом в своих косметических процедурах.
СВАДЕБНЫЙ МАКИЯЖ:
Каждая девушка мечтает о дне своей свадьбы и хочет выглядеть идеально красивой. Свадебный макияж — это больше, чем просто лучший образ в одном из самых важных событий вашей жизни. Форма свадебного макияжа и неотъемлемая часть репертуара невесты. Хорошие дела требуют времени. Эстетика красоты начинается заранее с предсвадебного ухода за лицом, который подготовит вашу кожу. Профессионально выполненный макияж и прическа подчеркнут сияющие украшения и великолепное свадебное платье и подчеркнут ваши лучшие черты.
КАМЕННАЯ ТЕРАПИЯ:
Стоун-терапия снимает напряжение, снимает мышечную жесткость и увеличивает кровообращение и обмен веществ. Он избавляет от укусов, связанных с фибромиалгией, артритом, синдромом запястного канала и другими хроническими состояниями. Это улучшает гибкость суставов и снижает хроническое напряжение и напряжение, создаваемое сокращенными мышцами.
АРОМАТЕРАПИЯ:
В ароматерапии используются растительные материалы и ароматические растительные масла, включая эфирные масла и другие ароматические соединения, с целью изменения настроения или физического комфорта.Он воздействует на нервную систему, успокаивая ваш разум и тело. Это комплексная терапия, доставляющая удовольствие разуму, телу и духу. Когда эфирные масла наносятся на тело во время массажа, эфирные масла попадают в кожу через волосяные фолликулы, попадают в кровоток и циркулируют по всему телу.
РАСШИРЕННЫЕ УХОДЫ ДЛЯ ЛИЦА:
Процедура ухода за лицом — один из лучших способов ухода за кожей, особенно когда его делает опытный и знающий человек.
Уход за лицом очищает и питает кожу, придает ей чистый, хорошо увлажненный цвет и помогает вашей коже выглядеть моложе. Но перед каждой процедурой будет проводиться профессиональный анализ кожи для определения типа кожи и ее состояния. Для лечения выбираются самые лучшие профессиональные продукты по уходу за кожей, которые лучше всего подходят для вашей кожи.
УКЛАДКА ДЛЯ ВОЛОС:
Укладку волос можно рассматривать как часть личного ухода и моды. Это сущность красоты и моды.Это касается не только укладки, но и всех аспектов ухода за волосами и ухода за ними. Лечение волос проводится для предотвращения и восстановления повреждений волос, включая лечение перхоти и выпадения волос, лечение протеиновыми волосами, спа-процедуры для волос, глубокое кондиционирование и лечение кератином.
Макет записи 1 и глоссарий для
E # Глоссарий ReferenceElementDescriptionElementAttributeInboundStart PositionOutboundStart PositionBSP HOT Запись BSP HOTElementARC CAT Запись ARC CATElement1 RCID Запись Идентификация 2 A / N 43 1 ATPCO сгенерировано 2 Порядковый номер SQNR 8 N 45 33 TDNR Номер билета / документа 15 A / N 53 11 BKS24 TDNR TKS24 TDNR4 CDGT Номер билета / документа Контрольная цифра 1 N 68 26 BKS24 CDGT TKS24 CDGT5 Номер контроля передачи TCNR 15 A / N 69 27 BKS24 TCNR TKS24 TCNR6 TCND Контрольный номер передачи контрольная цифра 1 N 84 42 BKS24 TCND TKS24 TCND7 TRNC Код транзакции 4 A / N 85 43 BKS24 TRNC TKS24 DOCT8 FNDT Data Foundation 1 A / N 47 ATPCO сгенерировано9 RTYP Reversal Type 1 A / N 4810 INTR Внутренний ATPCO Используйте только 1 A / N 91 4911 FVIN Sales Data Exchange Plus Indicator 1 A / N 92 5012 TKMI Ticketing Mode Indicator 1 A / N 93 51 BAR64 TKMI TKS24 TKMI13 CJCP Conjunction Ticket Indicator 3 A / N 94 52 BKS24 CJCP TKS24 CJCP14 Соединение CREL — относительный билет 2 N 97 55 ATPCO сгенерировано15 Соединение CTOT — общее количество билетов 2 N 99 5716 Соединение CPTK — основной билет / передача 10 A / N 101 59Number17 Индикатор использования купона CPUI 4 A / N 111 69 BKS24 CPUI TKS24 CPUI18 Номер связанного билета ATKT 15 A / N 115 7319 Идентификатор системы отчетов RPSI 4 A / N 130 88 BAR64 SASI TKS24 SASI20 PNRR Ссылка на PNR и / или данные авиакомпаний 13 A / N 134 92 BKS24 PNRR TKS24 PNRR21 FILL Filler 3 A / N 147 10522 PXNM Имя пассажира 49 A / N 150108 BAR65 PXNM TKS48 PXNM23 DAIS Дата выдачи 8 N 199 157 BKS24 DAIS TKS24 DAIS24 TIOT Ticketing Entity Outlet Type 1 A / N 207 16525 AGTN / ALON Цифровой код агента / Расположение авиакомпании 8 A / N 208 166 BKS24 или AGTN TOH03 AGTNNumberBOH0326 FILL Filler 8 A / N 216 17427 Идентификация клиента CLID 15 A / N 224 182 BAR64 CLID TKS48 CLID28 BEOT Booking Entity Outlet Type 1 A / N 239 197 BAR64 BEOT29 BOON Агентство бронирования / Номер местоположения 8 A / N 240 198 BAR64 BOON30 BISO Место для бронирования Код страны ISO 2 A / N 248 20631 POSA Point of Sale 5 A / N 250 20832 POIS Пункт выдачи билетов 5 A / N 255 21333 TISO Ticketing Entity — ISO Country Code 2 A / N 260 21834 SCNF Ticketing Entity — Stock Control Number 16 A / N 262 220From35 SCNT Ticketing Entity — Stock Control Number To 4 A / N 278 23636 ALTP Второй набор запасов — утвержденное расположение 1 A / N 282 240 BKT06 ALTPOutlet Type37 Второй набор запасов ALNC — утвержденное расположение 8 N 283 241 BKT06 ALNCNumeric Code38 Второй набор запасов TISO — утвержденное расположение ISOCountry Code2 A / N 291 249
Kimberlite Homes — Строители доступного жилья в штате Виктория, штат Техас,
Подробнее + 20 января 2021 По kimberlitehomes в Салем Crossing105 Beacon Ln
& NBSP & NBSP & nbspBedrooms — 3& NBSP & NBSP & nbspBathrooms — 2
& NBSP & NBSP & nbspGarage — 2 Автомобиль Прикрепленный
& NBSP & NBSP & nbspPrice — $ 359900
& NBSP & NBSP & nbspLiving Sq Ft — +1988
& NBSP & NBSP & nbspSlab Sq Ft — 2771
Дополнительная информация + 20 января 2021 по kimberlitehomes в Салем Crossing
107 Beacon Ln
& NBSP & NBSP & nbspBedrooms — 4& NBSP & NBSP & nbspBathrooms — 2
& NBSP & NBSP & nbspGarage — 2 Автомобиль Прикрепленный
& NBSP & NBSP & nbspPrice — $ 399900
& NBSP & NBSP & nbspLiving Sq Ft — 2228
& NBSP & NBSP & nbspSlab Sq Ft — 3186
Дополнительная информация + 20 января 2021 По kimberlitehomes в Capstone
350 Wellspring
& NBSP & NBSP & nbspBedrooms — 3& NBSP & NBSP & nbspBathrooms — 2
& NBSP & NBSP & nbspGarage — 2 Автомобиль Прикрепленный
& NBSP & NBSP & nbspPrice — $ 389900
& NBSP & NBSP & nbspLiving Футы — 2098
& NBSP & NBSP & nbspSlab Футы — 2,9 72
Подробнее + 20 января 2021 По kimberlitehomes в Blue Jay Loop
109 Blue Jay
& NBSP & NBSP & nbspBedrooms — 4& NBSP & NBSP & nbspBathrooms — 2
& NBSP & NBSP & nbspGarage — 2 Автомобиль Прикрепленный
& NBSP & NBSP & nbspPrice — $ 279900
& NBSP & NBSP & nbspLiving Sq Ft — 1613
& NBSP & NBSP & nbspSlab Sq Ft — 2,358
Подробнее + 20 января 2021 По kimberlitehomes в Blue Jay Loop
105 Blue Jay
& NBSP & NBSP & nbspBedrooms — 3& NBSP & NBSP & nbspBathrooms — 2
& NBSP & NBSP & nbspGarage — 2 Автомобиль Прикрепленный
& NBSP & NBSP & nbspPrice — $ 279900
& NBSP & NBSP & nbspLiving Sq Ft — 1615
& NBSP & NBSP & nbspSlab Sq Ft — 2351
Подробнее + 06 Январь 2021 By kimberlitehomes in Capstone
500 Dayspring
& nbsp & nbsp & nbspСпальни — 5& nbsp & nbsp & nbspВанные комнаты — 4.
5 & NBSP & NBSP & nbspGarage — 3 автомобиля Прикрепленный
& NBSP & NBSP & nbspPrice — $ 669900
& NBSP & NBSP & nbspLiving Sq Ft — 4075
& NBSP & NBSP & nbspSlab Sq Ft — 3694
Дополнительная информация + 21 августа 2020 По kimberlitehomes в Homestead Acres
321 Honeycomb
& NBSP & NBSP & nbspBedrooms — 3& NBSP & NBSP & nbspBathrooms — 2
& NBSP & NBSP & nbspGarage — 2 автомобиля Прикрепленный
& NBSP & NBSP & nbspPrice — $ 304900
& NBSP & NBSP & nbspLiving Sq Ft — 1556
& NBSP & NBSP & nbspSlab Sq Ft — 2340
Дополнительная информация + 31 июля 2020 К kimberlitehomes в Салем Crossing
412 Town Hall
& NBSP & NBSP & nbspBedrooms — 3& NBSP & NBSP & nbspBathrooms — 2
& NBSP & NBSP & nbspGarage — 2 Автомобиль Прикрепленный
& NBSP & NBSP & nbspPrice — $ 299900
& NBSP & NBSP & nbspLiving Sq Ft — 1727
& NBSP & NBSP & nbspSlab Sq Ft — 2519
Дополнительная информация + 30 июля 2020 По kimberlitehomes в Blue Jay Loop
103 Blue Jay
& NBSP & NBSP & nbspBedrooms — 3& NBSP & NBSP & nbspBathro OMS — 2
& NBSP & NBSP & nbspGarage — 2 Автомобиль Прикрепленный
& NBSP & NBSP & nbspPrice — $ 231153
& NBSP & NBSP & nbspLiving Sq Ft — 1361
& NBSP & NBSP & nbspSlab Sq Ft — +1997
Подробнее + 29 июня 2020 По kimberlitehomes в Салем Crossing
110 Beacon Ln
& NBSP & NBSP & nbspBedrooms — 4& NBSP & NBSP & nbspBathrooms — 2
& NBSP & NBSP & nbspGarage — 2 автомобиля Прикрепленных
& NBSP & NBSP & nbspPrice — $ 365494
& NBSP & NBSP & nbspLiving Sq Ft — 2160
& NBSP & NBSP & nbspSlab Sq Ft — 3021
кимберлитовых Homes — Доступные Главные Строители в Виктории TX
Подробнее + 20 января 2021 По kimberlitehomes в Салем Crossing105 Beacon Ln
& NBSP & NBSP & nbspBedrooms — 3& NBSP & NBSP & nbspBathrooms — 2
& NBSP & NBSP & nbspGarage — 2 Автомобиль Прикрепленный
& NBSP & NBSP & nbspPrice — $ 359900
& NBSP & NBSP & nbspLiving Sq Ft — +1988
& NBSP & NBSP & nbspSlab Sq Ft — 2771
Дополнительная информация + 20 января 2021 по kimberlitehomes в Салем Crossing
107 Beacon Ln
& NBSP & NBSP & nbspBedrooms — 4& NBSP & NBSP & nbspBathrooms — 2
& NBSP & NBSP & nbspGarage — 2 Автомобиль Прикрепленный
& NBSP & NBSP & nbspPrice — $ 399900
& NBSP & NBSP & nbspLiving Sq Ft — 2228
& NBSP & NBSP & nbspSlab Sq Ft — 3186
Дополнительная информация + 20 января 2021 По kimberlitehomes в Capstone
350 Wellspring
& NBSP & NBSP & nbspBedrooms — 3& NBSP & NBSP & nbspBathrooms — 2
& NBSP & NBSP & nbspGarage — 2 Автомобиль Прикрепленный
& NBSP & NBSP & nbspPrice — $ 389900
& NBSP & NBSP & nbspLiving Футы — 2098
& NBSP & NBSP & nbspSlab Футы — 2,9 72
Подробнее + 20 января 2021 По kimberlitehomes в Blue Jay Loop
109 Blue Jay
& NBSP & NBSP & nbspBedrooms — 4& NBSP & NBSP & nbspBathrooms — 2
& NBSP & NBSP & nbspGarage — 2 Автомобиль Прикрепленный
& NBSP & NBSP & nbspPrice — $ 279900
& NBSP & NBSP & nbspLiving Sq Ft — 1613
& NBSP & NBSP & nbspSlab Sq Ft — 2,358
Подробнее + 20 января 2021 По kimberlitehomes в Blue Jay Loop
105 Blue Jay
& NBSP & NBSP & nbspBedrooms — 3& NBSP & NBSP & nbspBathrooms — 2
& NBSP & NBSP & nbspGarage — 2 Автомобиль Прикрепленный
& NBSP & NBSP & nbspPrice — $ 279900
& NBSP & NBSP & nbspLiving Sq Ft — 1615
& NBSP & NBSP & nbspSlab Sq Ft — 2351
Подробнее + 06 Январь 2021 By kimberlitehomes in Capstone
500 Dayspring
& nbsp & nbsp & nbspСпальни — 5& nbsp & nbsp & nbspВанные комнаты — 4.
5 & NBSP & NBSP & nbspGarage — 3 автомобиля Прикрепленный
& NBSP & NBSP & nbspPrice — $ 669900
& NBSP & NBSP & nbspLiving Sq Ft — 4075
& NBSP & NBSP & nbspSlab Sq Ft — 3694
Дополнительная информация + 21 августа 2020 По kimberlitehomes в Homestead Acres
321 Honeycomb
& NBSP & NBSP & nbspBedrooms — 3& NBSP & NBSP & nbspBathrooms — 2
& NBSP & NBSP & nbspGarage — 2 автомобиля Прикрепленный
& NBSP & NBSP & nbspPrice — $ 304900
& NBSP & NBSP & nbspLiving Sq Ft — 1556
& NBSP & NBSP & nbspSlab Sq Ft — 2340
Дополнительная информация + 31 июля 2020 К kimberlitehomes в Салем Crossing
412 Town Hall
& NBSP & NBSP & nbspBedrooms — 3& NBSP & NBSP & nbspBathrooms — 2
& NBSP & NBSP & nbspGarage — 2 Автомобиль Прикрепленный
& NBSP & NBSP & nbspPrice — $ 299900
& NBSP & NBSP & nbspLiving Sq Ft — 1727
& NBSP & NBSP & nbspSlab Sq Ft — 2519
Дополнительная информация + 30 июля 2020 По kimberlitehomes в Blue Jay Loop
103 Blue Jay
& NBSP & NBSP & nbspBedrooms — 3& NBSP & NBSP & nbspBathro OMS — 2
& NBSP & NBSP & nbspGarage — 2 Автомобиль Прикрепленный
& NBSP & NBSP & nbspPrice — $ 231153
& NBSP & NBSP & nbspLiving Sq Ft — 1361
& NBSP & NBSP & nbspSlab Sq Ft — +1997
Подробнее + 29 июня 2020 По kimberlitehomes в Салем Crossing
110 Beacon Ln
& NBSP & NBSP & nbspBedrooms — 4& NBSP & NBSP & nbspBathrooms — 2
& nbsp & nbsp & nbsp Гараж — 2 прикрепленных автомобиля
& nbsp & nbsp & nbspЦена — 365 494 долл.
США & nbsp & nbsp & nbsp Жилая площадь — 2160
& nbsp & nbsp & nbsp & nbsp & nbsp & nbsp & nbsp & nbsp & nbsp & nbsp & nbsp & nbsp & nbsp для процветания любого процесса.Его необходимо тщательно соблюдать, планировать и поддерживать на всех этапах разработки продуктов и процессов, эксплуатации и даже во время демонтажа и восстановления процессов в конце их жизненного цикла. Учет вопросов безопасности во время синтеза и проектирования процессов особенно важен, поскольку их реализация на этом раннем этапе является наиболее эффективной и наименее затратной. Что касается различных стратегий, могут применяться последовательные и одновременные стратегии, причем первые преобладают в инженерной практике.Однако одновременное рассмотрение вопросов безопасности во время процессов синтеза и проектирования может привести к значительно более безопасным проектам. Безопасность можно повысить на этапе проектирования, применяя различные прямые и косвенные меры. Примером прямых мер может быть выполнение синтеза схемы процесса одновременно с анализом риска, чтобы способствовать неотъемлемой безопасности проекта.
Также было бы желательно одновременное рассмотрение других вопросов работоспособности, таких как доступность, надежность и управляемость, поскольку это косвенно повысит безопасность установки.Поэтому предлагается следующая смешанная целочисленная программа (S-MINLP) для выполнения синтеза более безопасных и более функциональных технологических схем процесса: maxz = cTy + fxs.thx = 0gx≤0By + Cx≤bS-MINLPRiskxy≤0Operxyi≤0x∈X = x ∈Rⁿ: xLO≤xUPy∈Y = 01m Любое повышение собственной безопасности напрямую способствует повышению безопасности процесса. Полагаться исключительно на систему управления довольно проблематично, поскольку в каждой системе управления есть пробелы во время любого отклонения. Более того, значительный уровень (по некоторым оценкам, более 80%) несчастных случаев является следствием человеческой ошибки, независимо от какой-либо передовой системы управления.Таким образом, минимизация неотъемлемого риска является одним из существенных аспектов планирования процесса. Основными факторами, связанными с внутренней безопасностью, являются количество и тип различных веществ, присутствующих в оборудовании, а также качество (надежность) используемого оборудования.
Решения об этих факторах обычно принимаются на ранней стадии планирования; поэтому внутренняя безопасность должна оцениваться одновременно с принятием этих решений, поскольку последующие изменения могут быть трудными или невозможными для реализации.В случае маломасштабной сети теплообменников (Nemet et al., 2017) была получена значительно более безопасная конструкция при сохранении экономических показателей на том же уровне (риск был уменьшен вдвое, а чистая приведенная стоимость расходов была незначительной). Это стало возможным благодаря выбору компактных теплообменников, которые содержат меньшее количество веществ и, следовательно, меньший риск для того же количества теплообмена. Когда этот подход был применен к более крупномасштабной интеграции различных заводов через центральную систему инженерных коммуникаций (Total Site), повышенная безопасность была достигнута только путем значительного компромисса в экономических показателях (получение конструкции, которая была вдвое безопаснее, привело к 23 % увеличения ОДУ).
Аналогичный вывод был сделан после синтеза процесса производства метанола (повышение рисков на 30% было достигнуто за счет снижения прибыли на 27%). Интересно отметить, что более безопасная конструкция была получена за счет более низкой общей конверсии процесса, потому что более низкая скорость рециркуляции приводит к меньшим технологическим установкам, содержащим меньшие количества опасных веществ. Безусловно, в будущем необходимо учитывать различные проблемы, например: те, которые связаны с другими компромиссами, помимо компромисса между экономикой vs.безопасность. Более того, проблема выбора большого количества единиц оборудования может оказаться слишком сложной, поскольку оценка риска для всех из них может оказаться невозможной. Также обратите внимание, что внутренняя безопасность может быть ограничена каждой отдельной единицей в отдельности или процессом в целом. Ограничение его отдельными единицами приведет к процессам с большим количеством единиц меньшего размера, в то время как ограничение ее процессами будет способствовать использованию схем с меньшим количеством единиц, каждая из которых несет более высокий риск.
Кроме того, экономия на масштабе направляет компромисс между экономикой и безопасностью в сторону более крупных, а значит, и более рискованных процессов, в то время как, с другой стороны, риск может быть уменьшен для более мелких процессов с помощью компактного высокоточного оборудования.Оценка неотъемлемого риска также может служить для выбора более безопасного сырья, технологий и продуктов с целью повышения устойчивости производства. В химической обрабатывающей промышленности обычно работают с опасными материалами, которые связаны с внутренним риском. Отклонения от нормы могут привести к инцидентам с различными последствиями — от аварийных ситуаций до катастрофических аварий. Обычно используются различные уровни защиты, чтобы снизить вероятность аномальных условий или уменьшить серьезность их последствий.Даже среди различных уровней защиты, развернутых на предприятии, роль людей посредством своевременных и правильных действий имеет решающее значение для обеспечения надлежащего функционирования.
И наоборот, человеческая ошибка может привести к сбоям системы. Более того, такая зависимость от людей для «активного» обеспечения безопасности широко распространена. Возможно, из-за веры в то, что человеческая ошибка неизбежна и непредсказуема, или что достижения в области автоматизации уменьшат потребность во вмешательстве человека, области человеческой ошибки уделяется ограниченное внимание.Однако различные исследования в различных областях, включая химическую промышленность, показали, что сегодня на ошибку человека приходится более 70% всех несчастных случаев. Человеческие ошибки можно сгруппировать в различные категории, одной из важных категорий являются когнитивные ошибки, то есть неудачи в решении проблем. Когнитивные ошибки, особенно возникающие во время нештатных ситуаций, можно разделить на ошибки интерпретации (неправильная идентификация проблемы), принятия решений (неправильный выбор задачи для компенсации проблемы) или планирования задачи (неправильная формулировка последовательности действий на основе ограничения задачи).
Все эти режимы требуют, чтобы оператор использовал мысленную модель поведения растения (которое изменяется во времени) и его состояния (также динамическое). Любое несоответствие между состоянием растения и концепцией оператора является предвестником когнитивной ошибки. Следовательно, вывод о таких когнитивных несоответствиях порождает стратегию предотвращения человеческой ошибки. Наше исследование было направлено на использование когнитивных датчиков, таких как айтрекеры, для выявления текущего фокуса внимания и когнитивных стратегий операторов диспетчерской при эксплуатации (смоделированной) установки.Современные коммерческие серийные айтрекеры обеспечивают неинвазивную, моментальную оценку мыслительных процессов с временным разрешением в миллисекундах, в то время как оператор удобно сидит перед монитором DCS. Наши экспериментальные исследования с большими когортами людей ясно демонстрируют, что взгляд оператора и степень расширения зрачка могут дать глубокое понимание познания оператора при работе с ненормальными ситуациями.
В частности, одно исследование показало, что распределение взглядов участников по разным переменным во время смоделированных ненормальных ситуаций связано с их эффективностью в работе с ситуацией: участники, чей взгляд дольше оставался на некоррелированных переменных, в основном не справлялись с ситуацией.Пупиллометрия использовалась для анализа рабочей нагрузки участников во время нестандартных сценариев и установила, что диаметр зрачка является хорошим индикатором когнитивной нагрузки во время выполнения задач. Нагрузка участников, которым не удалось справиться с ненормальным сценарием, к концу оставалась высокой, как и соответствующее расширение зрачков. С другой стороны, участники, успешно выполнившие задания, показали последовательное уменьшение диаметра зрачка после первого набора корректирующих действий.В другом исследовании энтропия взгляда использовалась для количественной оценки уровня осведомленности участника о ситуации при работе с ненормальными ситуациями, и было обнаружено, что участники с адекватной осведомленностью о ситуации смотрели только на несколько переменных, ответственных за ненормальный сценарий, что привело к снижению энтропии взгляда.




9 м2
Стены в блочных домах типовой серии II-68-01/16 толще, чем у домов блочной серии-предшественницы И-209.
;